Индиана

Поделиться с друзьями:
700 000 руб
  • В закладки
  • Зеркальное отображение
  • Print
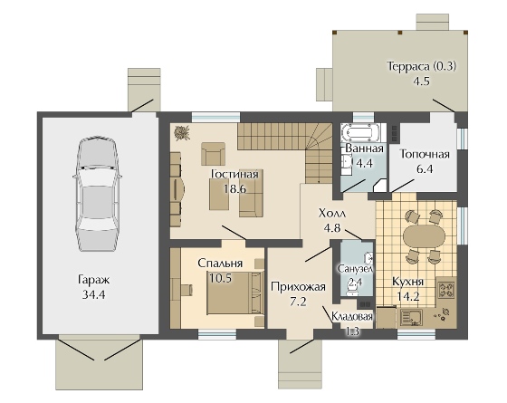
  • Оригинальный проект дома, в котором есть несколько спален, в том числе на первом и втором этажах. Топочная, санузел и кухня находятся рядом, что обеспечивает дополнительный комфорт и удобство планировки здания.

    Большая по габаритам гостиная является одним из главных преимуществ планировки этого дома. В ней можно встречать гостей и проводить время с семьёй, при этом каждый будет чувствовать себя удобно. Места хватит всем и каждому, жильцы дома будут довольны сделанным выбором в пользу этого варианта.

  • Индиана Индиана Индиана Индиана Индиана
  • Общая площадь дома:
    165,1
  • Жилая площадь дома:
    68,6
  • Гараж:
    Да
  • Цоколь:
    Нет
  • Мансарда:
    Да
  • Тип фундамента:
    ленточный монолитный
  • Тип наружных стен:
    блоки ПГС+утепление мин.плитой
  • Типы перекрытий:
    монолит/плиты перекрытия/по деревянным балкам
  • Крыша:
    металлочерепица