Лузар
Поделиться с друзьями:
- В закладки
- Зеркальное отображение
-
Шикарный коттедж для перспективных и состоятельных людей, который является не только просторным, но и невероятно комфортным. Благодаря грамотно продуманной планировке, мы получили жильё, в котором каждый из хозяев будет чувствовать себя потрясающе.
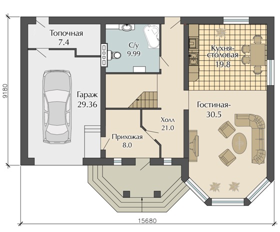
Уютную атмосферу этому домовому проекту придаёт наличие нескольких спален на втором этаже здания, а также большой гостиной комнаты, которая на первом этаже находится. Проектом предусмотрено наличие гаража и хозяйственного помещения возле дома, что является невероятно удобным.
-
-
Общая площадь дома: 201.6
-
Жилая площадь дома: 87.8
-
Гараж: Да
-
Цоколь: Нет
-
Мансарда: Да
-
Тип фундамента: ленточный монолитный
-
Тип наружных стен: блоки ПГС+утепление мин.плитой
-
Типы перекрытий: плиты перекрытия
-
Крыша: гибкая черепица

8 (029) 665 44 04





