Герона
Поделиться с друзьями:
- В закладки
- Зеркальное отображение
-
-
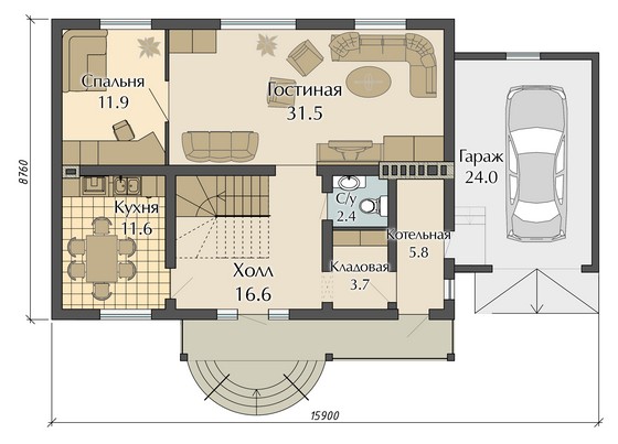
Общая площадь дома: 186.1
-
Жилая площадь дома: 98.7
-
Гараж: Да
-
Цоколь: Нет
-
Мансарда: Да
-
Тип фундамента: ленточный монолитный
-
Тип наружных стен: блоки ПГС+утепление мин.плитой
-
Типы перекрытий: плиты перекрытия
-
Крыша: металлочерепица

8 (029) 665 44 04





